Rif: IMMOBILE USO UFFICIO – CATEGORIA A/10
ROMA
ROMA - zona la Storta
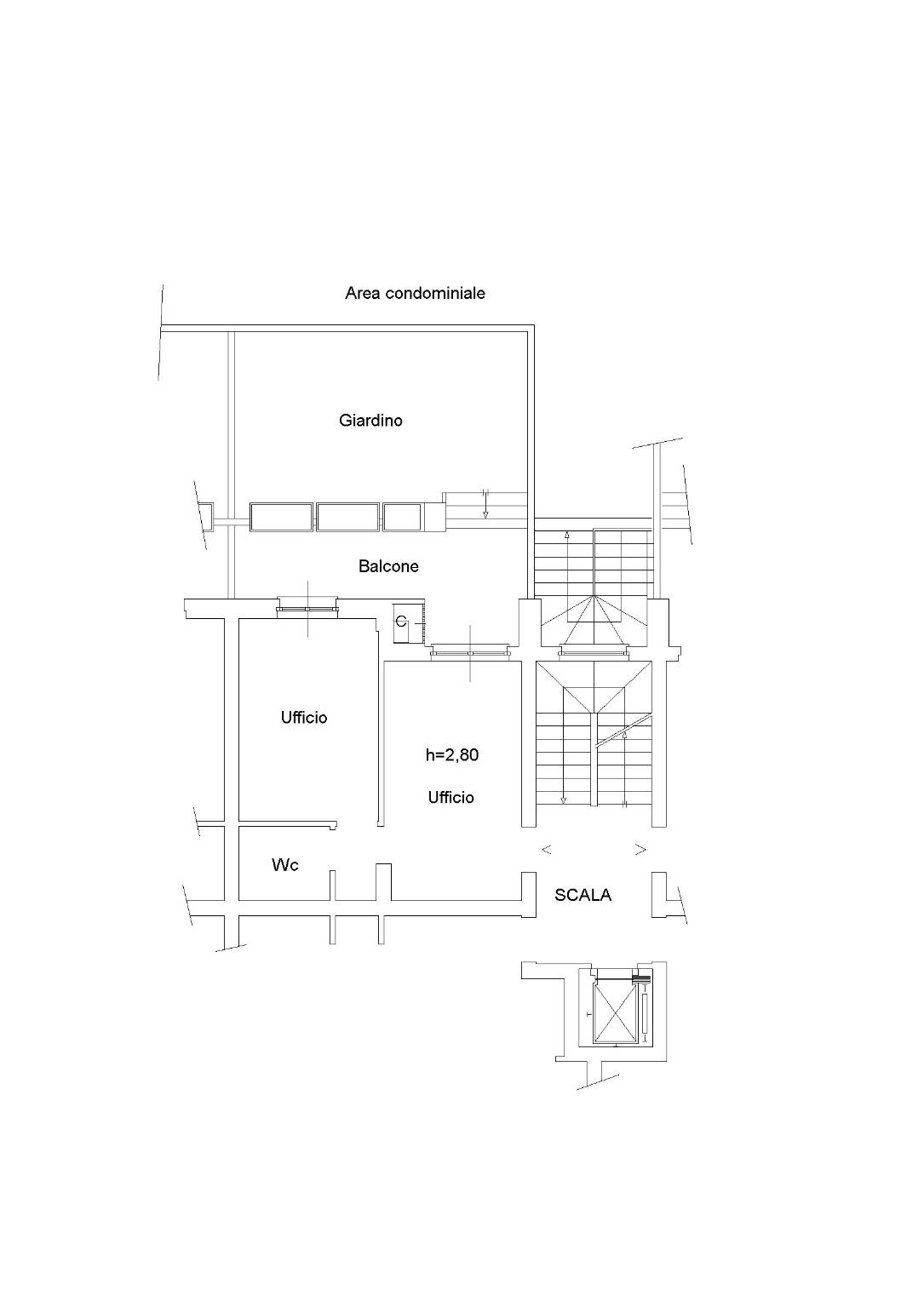
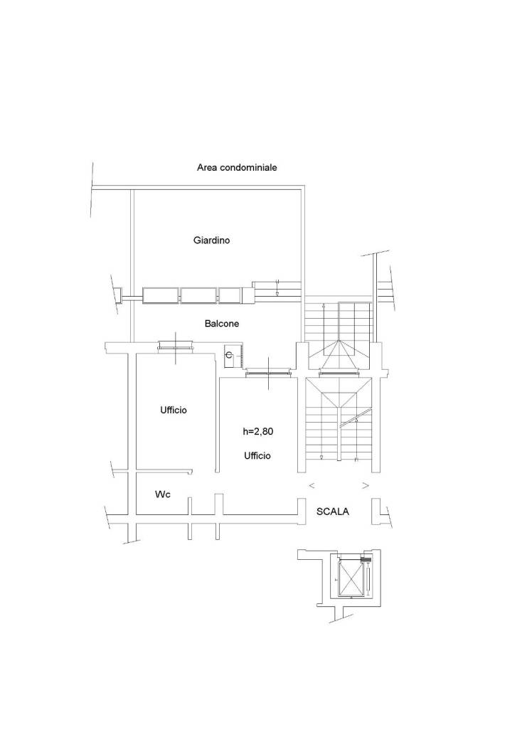
Via Enrico Bassano – In palazzina di recente costruzione, la Feel House Re propone in vendita un ufficio A/10 posto al primo piano, con una superficie di 54 mq. La soluzione si compone di primo ampio ambiente operativo principale, con predisposizione per zona break, un ulteriore spazio dedicabile a sala riunioni o ufficio direzionale, oltre a un servizio con vasca. A completare la proprietà, un ampio spazio esterno di circa 50 mq, ideale come area relax o per attività all'aperto. L'immobile è stato completamente ristrutturato e dispone di infissi in legno con doppi vetri, riscaldamento autonomo, pavimentazione in parquet e gres, porta blindata. Inclusi una cantina e un box auto di 17 mq. Situato in una zona in forte sviluppo, servita da attività commerciali e scuole, l'ufficio è ottimamente collegato alla stazione La Storta. Contesto luminoso e silenzioso. Per ulteriori informazioni o per fissare un appuntamento, contattateci ai numeri: 06/59637793 – 351/6454731.
Consistenze
| Descrizione | Superficie | Sup. comm. |
|---|---|---|
| Principali | ||
| Ufficio - piano terra | 54 Mq | 54 Mqc |
| Totale | 54 Mqc | |
