Feel House Real Estate

IMMOBILE A REDDITO SAN PAOLO CON RENDITA DEL 13,5%

Home > Ricerca > Dettaglio immobile
Rif: IMMOBILE A REDDITO SAN PAOLO CON RENDITA DEL 13,5

ROMA

ROMA - zona San Paolo
Condividi Linkedin Whatsapp Stampa
Stampa

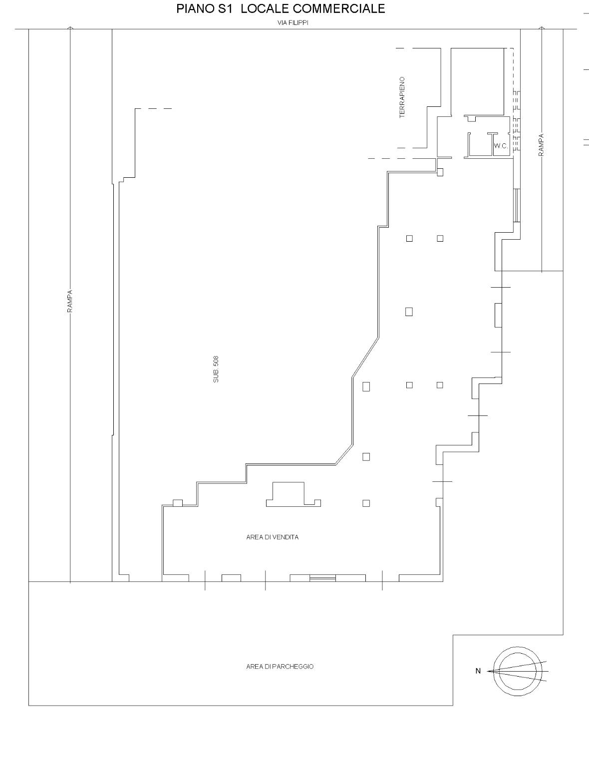
IMMOBILE A REDDITO SAN PAOLO CON RENDITA DEL 13,5% - San Paolo e più precisamente in Via Filippi, alle spalle dell'ospedale pediatrico Bambino Gesù, Feel House Real Estate propone in vendita un immobile commerciale di 614 mq complessivi con reddito dell' 13,50% posto al piano seminterrato S1, accessibile attraverso 2 rampe d'accesso così diviso: Locale C1 mq. 437 commerciali di cui mq 287 calpestabili Locale C6 mq. 327. Il canone di locazione di Eu. 54.00 annui, è di anni 6+6 con decorrenza a partire da 1 settembre 2024. Attività adiacenti: supermercato Todis, bar, parrucchiere, abbigliamento, libreria, farmacia + mercato rionale di San Paolo. Visionabile previo appuntamento telefonico. Per ulteriori informazioni contattare la Feel House Re ai numeri 06/59637793 o 351/6454731.

Consistenze

Descrizione Superficie Sup. comm.
Principali
Negozio - seminterrato 614 Mq 614 Mqc
Totale 614 Mqc

Video


Richiedi maggiori informazioni

Autorizzazione al trattamento dei dati personali+
Dichiaro di aver letto l'informativa sulla privacy ed accetto le condizioni d'utilizzo del servizio.
Riempi il campo con il codice riportato nell'immagine*
Codice Captcha
Chiamaci Chiamaci Contattaci