Rif: AMPIO UFFICIO VITINIA
ROMA
ROMA - zona Vitinia
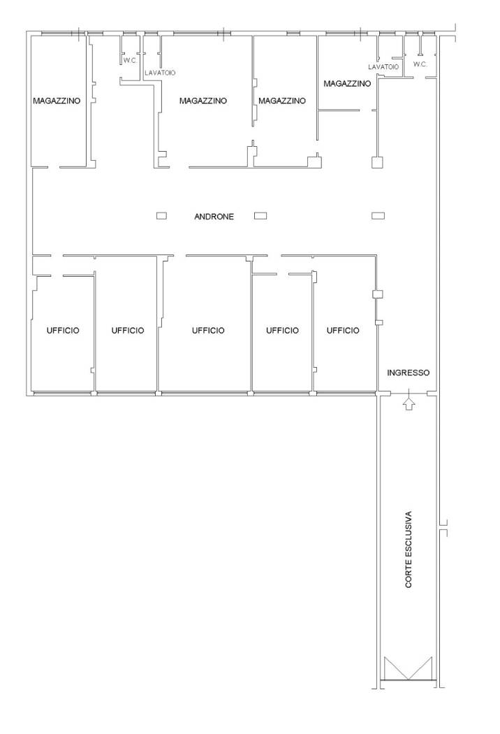
Vitinia e più precisamente in Via Castiglion dé Pepoli, Feel House RE propone la vendita si un ampio locale A/10 di 650 mq situato al piano terra e ristrutturato in 5 ambienti oltre ampi magazzini e servizi, al quale si accede attraverso una corte esclusiva caratterizzata dall'assenza di barriere architettoniche. Flessibile essendo parimenti adatto a molteplici attività, quali uffici - anche nella sua accezione condivisa come il co-working, scuola di lingue, accademia, laboratorio analisi, associazioni culturale e varie. La vicinanza a due importanti arterie stradali come l'ostiense e la colombo, ed alla stazione del trenino di roma-lido a 1 km di distanza, lo rendono facilmente raggiungibile. Buone le condizioni interne, visionabile previo appuntamento telefonico al numero 0659637793 o al 3516454731.
Consistenze
Descrizione | Superficie | Sup. comm. |
---|---|---|
Principali | ||
Ufficio - piano terra | 650 Mq | 650 Mqc |
Totale | 650 Mqc |