Rif: VENDUTO - LUMINOSO APPARTAMENTO VITINIA
ROMA
ROMA - zona Vitinia
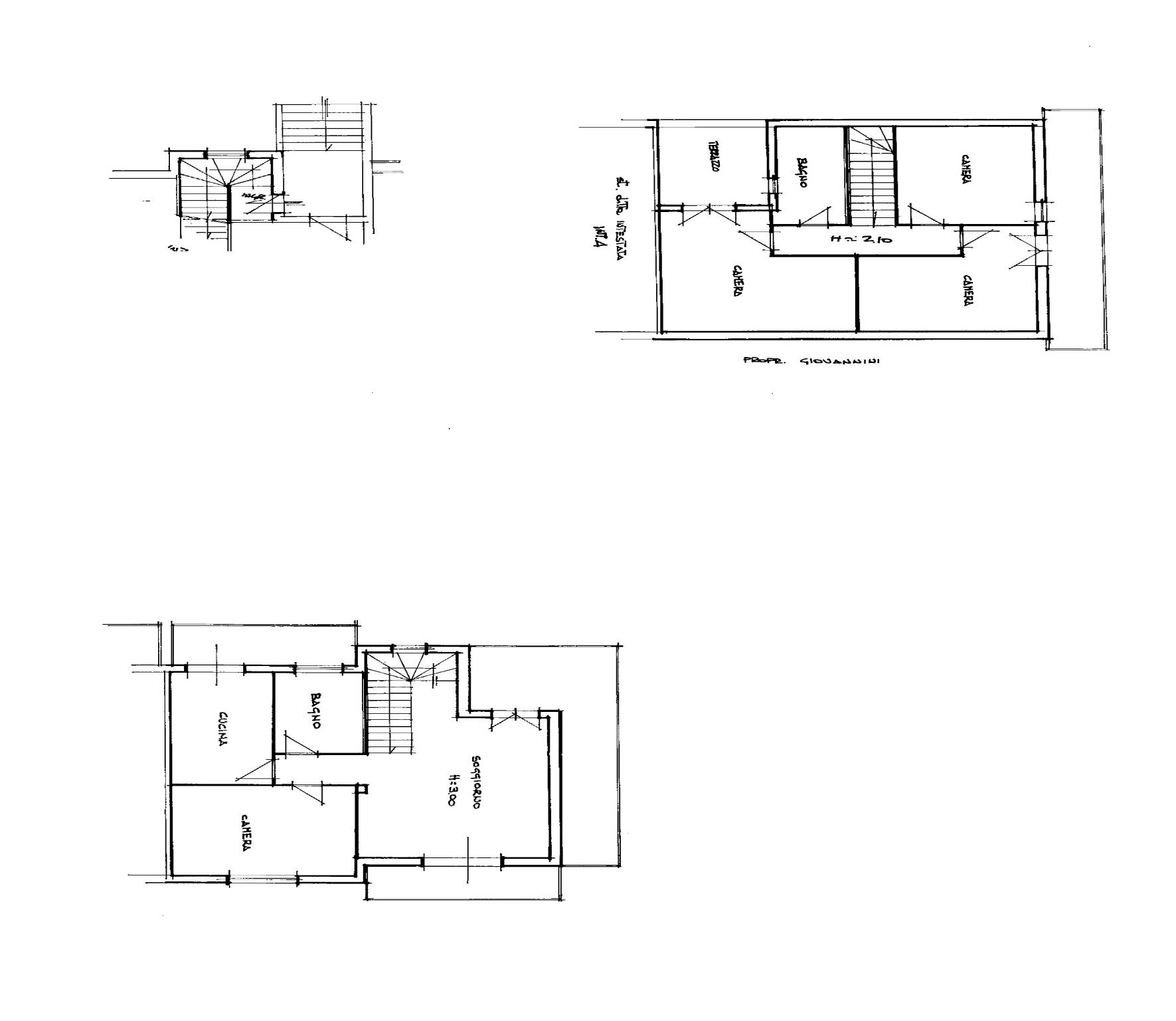
Nel quadrante di Roma sud, zona Vitinia e più precisamente in via Montefiore Conca Feel House RE è lieta di proporre la vendita di un luminoso appartamento di 136 mq sviluppato su due livelli i quali beneficiano entrambi di affaccio esterno con vista sul verde. Il primo piano si compone di ingresso, ampio soggiorno con doppio accesso a due balconi, camera matrimoniale, cucina abitabile e bagni che immettono entrambi al terzo balcone presente al piano. Dal soggiorno una scala conduce al secondo piano mansardato costituito da 3 camere; due servite dal balcone presente al piano e la terza con diretto accesso al terrazzo e bagno. Completano la proprietà una comoda cantina e due box auto doppi di 23 mq ciascuno. Le ragioni che rendono questa un'opportunità interessante sono molteplici: il collegamento con i mezzi pubblici, trovandosi la proprietà a 500 metri dalla stazione metro di Vitinia; l'accessibilità e vicinanza a tutta una serie di attività commerciali ed infine, ma parimenti importante, la possibilità di vivere un contesto residenziale che scherma il caos cittadino. Visionabile previo appuntamento telefonico 06/59637793 - 3516454731
Consistenze
| Descrizione | Superficie | Sup. comm. |
|---|---|---|
| Principali | ||
| Immobile - 1° piano | 136 Mq | 136 Mqc |
| Totale | 136 Mqc | |
